Jタウン建売住宅の着工が決定!
こんにちは!快適住空館です。
皆さま、大変お待たせしました!
水戸市Jタウンの建売住宅の工事が、3月から本格的に着工することが決まりました。
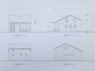
Jタウンの建売住宅は、アーリーアメリカンスタイルを採用。
ホワイトサイディングの外壁に、淡いボルドーカラーの屋根が映えるおしゃれなデザインです。
また、カバードポーチ(屋根付きの広々とした玄関ポーチ)が特徴的で、まるでカリフォルニアや西海岸のような雰囲気を感じられる住まいです。
もちろん外観だけでなく、便利な立地と防犯性にも優れた、快適さ×安心の設計です。
Jタウンの建売住宅は、なんと2000万円台から!
おしゃれで快適な住まいを、手の届きやすい価格でご提供いたします。
間取りも決まり、図面も完成しました!
私たちも完成が待ち遠しいです。
今後も進捗を随時お知らせしていきますので、お楽しみに!
▼Jタウン物件詳細
バス停が目の前!通勤通学には最高の立地です。
小学校からも近く、子育て世代にはおすすめの地域です。
【交通】
関鉄吉沢バス停0分、ゲオまで1分
水戸市立吉沢小学校500m
水戸市立第四中学校
水戸吉沢郵便局200m
茨城県庁1.2km
ご興味がある方は、是非お気軽にお問い合わせご相談ください。





